加入收藏|设为首页
通知公告
MORE联系我们

电 话:0512-68661808(人力资源) /0512-68662618/68661275(业务咨询)
传 真:0512-68661808
邮 编:215004
邮 箱:szruihepm@163.com
地 址:苏州高新区运河路99号柯利达研发大楼5楼
版 权:瑞和安惠众博网页版苏州分公司所有    苏ICP备19052960号-1

当前位置:首页>通知公告

苏州市彩香实验中学新建报告厅工程项目社会稳定风险评估公示

发布时间:2022-07-11 阅读次数:584 来源:系统管理员 作者:

苏州市彩香实验中学新建报告厅工程项目社会稳定风险评估公示

 


    一、项目概况

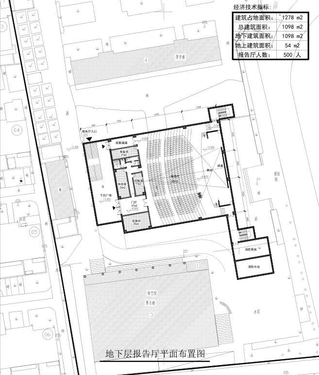
    项目位于彩香实验中学校区内厚学楼和厚乐楼中间,原篮球场区域,用地面积为1278.0平方米(约合1.92亩),拟新建总建筑面积为1098.0平方米,为单层半地下下沉式建筑。其中:地下建筑面积为1098平方米;地上建筑面积54.0平方米;其中,地面以上高度2.0米,地面以下最大深度6.6米,设计容纳人数500人。项目拟建设为综合报告厅,主要功能为学术报告、讲座、各种工作会议及文艺演出等。

本项目建设期预计为2.0年,预计总投资约2100.0万元。

    二、征求公众意见内容

    根据《国家发展改革委重大固定资产投资项目社会稳定风险评估暂行办法》(发改投资[2012]2492号)和《江苏省发展和改革委员会关于印发省发展改革委固定资产投资项目社会稳定风险评估暂行办法的通知》(苏发改规发[2012]1号),现对该项目进行公示,主要就以下几点征求公众对本项目的意见,如有其他方面意见或建议也可提出:

     1. 本项目建设和运营对您的工作、生活环境的影响;

     2. 本项目建设和运营对当地经济社会发展的影响;

     3. 本项目建设和运营对当地环境的影响;

     4. 本项目安全文明施工、质量管理;

     5. 其他意见和建议。

 

    三、公示说明

     1. 自公示之日起十个工作日内,公众可通过信函/电话/电子邮件等形式与事项责任单位、评估单位联系。

     2. 公示期间,评估单位将为公众提供相关资料查询和咨询服务。

     3. 同时,公众对本项目有社会稳定风险方面的建议或意见,可向建设单位、评估单位提出。

 

    四、联系方式

    (一)事项责任单位

     1. 单位名称:苏州市彩香实验中学

     2. 单位地址:苏州市姑苏区三香路899号

     3. 联 系 人:谢主任

     4. 联系电话:66097862

    (二)评估单位

     1. 单位名称:瑞和安惠项目管理众博网页版有限公司苏州分公司

     2. 单位地址:苏州市劳动路309号

     3. 联 系 人:李工

     4. 联系电话:0512-68336065    邮箱:857820153@qq.com

二〇一八年十月十九日